Tib hous

Tiburon House
Beginning life as a mundane 1950’s A frame track home, previously renovated by the owners into a cottage style. A now growing family necessitated more room.
To solve for the new program, the existing partial second floor master suite was expanded into a full second floor, including a new bedroom and master suite. A large family room was constructed off the kitchen, and an expansion of the living room allowed the inclusion of a dinning space. The single car garage was pushed back on site, and expanded into a two car garage, with Au Pair quarters above. The restrictive setbacks and view corridors made this project challenging to obtain the needed approvals from the city. The final result was a project well adapted to the site and widely accepted by the neighborhood and city.
This project was completed while Kevin was with Russell + Davis Architects.
Existing First Floor Plan
New First Floor Plan
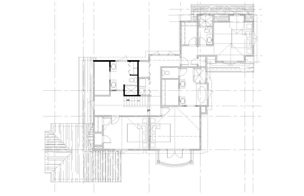
New Second Floor Plan