San Rafael House
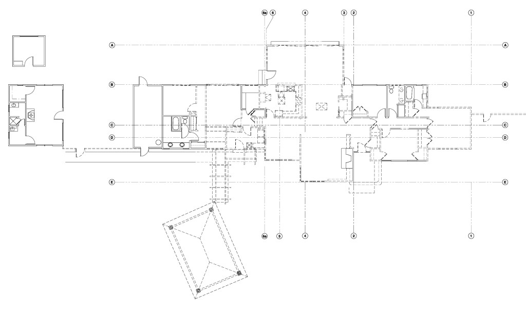
A 1950’s California ranch expands for a growing family. The owners were in search of more bedrooms, and a larger family room space to accommodate their lifestyle. The house’s entry was hidden from view and far from the main driveway of the house. A previous renovation had constructed an uneventful family room at the back of the house which lacked cohesiveness with the house.
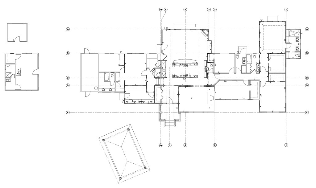
We began this design by relocating the front entry more centrally, and connecting it to the new kitchen and family great room. The great room knocked down walls between the existing kitchen, breakfast and family rooms, creating a single central living space which backed up to the formal living room. A new mudroom and laundry room was also constructed adjacent to the new entry with better access to the car port. The bedroom wing was expanded by adding the former entry hall into an adjacent bedroom, and the last bedroom was demolished to make room for a new additional bedroom and master suite. A water closet adjacent to the new family room was added to the plan, and an office space was reoriented and converted into a new playroom / office space with a larger guest bedroom beyond.
The exterior of the house was given a facelift with new horizontal siding and a new craftsman inspired look and feel, which completely transformed the 1950’s image of the house into a refreshing contemporary family friendly home.
This project was completed while Kevin was with Russell + Davis Architects.

Existing Floor Plan

New Floor Plan

Site Plan

Existing Elevation Front

New Elevation Front

Existing Elevation Rear

New Elevation Rear







