Ross House
A small two bedroom one bath post war bungalow, transformed into a elegant 4 bedroom cottage.
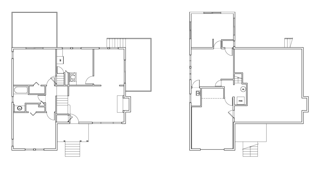
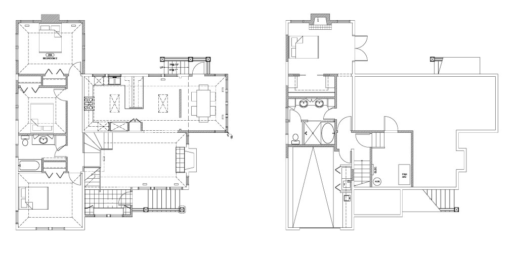
Purchased to renovate and resell. We expanded the footprint of the main level to create a new dinning space, and extended the second floor over the existing rear ground floor addition. The house was fully renovated on the inside to create three bedrooms upstairs, and a master suite on the ground level. The 8′ ceilings in the existing living room, kitchen, and bedrooms were raised with cove ceilings to increase the sense of volume in the rooms, and the new dinning room addition was built with a vaulted ceiling. The existing simple covered front entry was pushed out, reoriented and enclosed. New stairs and a landing were then added. The exterior was also fully renovated. The existing stucco was removed, and new shingle cladding and windows were added to the exterior.
This project was completed while Kevin was with Russell + Davis Architects.

Site Plan

Existing Floor Plans

New Floor Plans

Elevations












